内蒙古农业大学附属学校分校建设项目方案设计
Inner Mongolia Agricultural University affiliated school construction project design
项目位于呼和浩特市赛罕区丰州南路以东,保全街以北,基地东侧、西侧为住宅用地,红线北侧紧邻城市绿地,未来会调整为校园发展用地,前期规划可布置运动场地。
The project is located east of Fengzhou South Road and north of Baoquan Street in Saihan District, Hohhot City. The east and west sides of the base are residential land, and the north side of the red line is adjacent to urban green space. It will be adjusted to campus development land in the future, and sports venues can be arranged in the early planning stage.
项目建设用地面积30282.89平方米,约合45.42亩,长边约230米,短边约130米,整体现状地势平坦。规划总建筑面积45000平方米,包括48班小学部,24班初中部和其他教学功能用房以及一个400米标准操场和一栋可独立对外的多功能楼。
The construction land area of the project is 30282.89 square meters, approximately 45.42 acres, with a long side of about 230 meters and a short side of about 130 meters. The overall terrain is flat. The planned total construction area is 45000 square meters, including 48 classes for primary school, 24 classes for junior high school, and other teaching functional buildings, as well as a 400 meter standard playground and a multi-functional building that can be independently opened to the outside.
由于用地毗邻两条城市主干道,建筑退线均为20m,有限的可建设用地被进一步压缩,除操场可以占用北侧发展用地外,其余建筑均需设置在一期的场地内。如何在满足日照要求的前提下解决72班的教室功能以及处理好其他教学功能用房与活动场地的关系是本案的最大难点。
Due to the proximity of the land to two main urban roads, with a building setback of 20m, the limited available construction land has been further compressed. Except for the playground, which can occupy the development land on the north side, all other buildings need to be set up in the first phase of the site. The biggest challenge of this case is how to solve the classroom functions of Class 72 and manage the relationship between other teaching rooms and activity venues while meeting the requirements of sunlight.
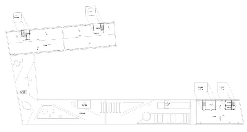
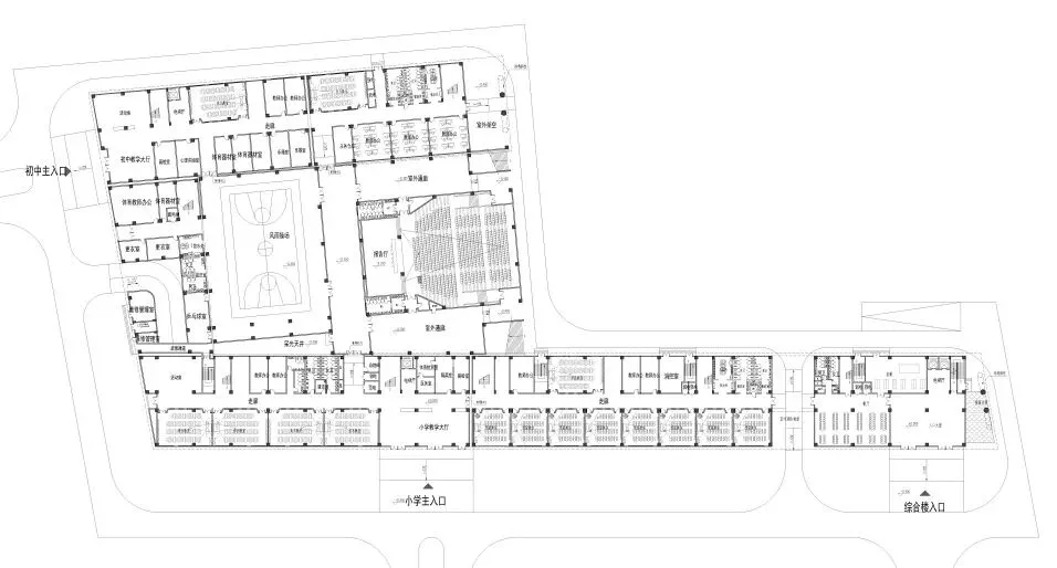
01.总体布局

地南侧布置一排48班小学部教学楼,西北侧布置24班初中部教学楼,北侧借用部分发展用地布置400m标准操场。公共配套教学功能用房置于中间庭院,面向操场布置,同时形成退台式景观活动平台;教育多功能楼独立设置在基地东侧,方便组织独立对外交通,避免对教学区域的影响。
On the south side, a row of 48 primary school teaching buildings will be arranged, while on the northwest side, 24 junior high school teaching buildings will be arranged. On the north side, a 400m standard playground will be arranged by borrowing some development land. The public supporting teaching function room is located in the middle courtyard, facing the playground layout, and forms a stepped landscape activity platform; The education multifunctional building is independently located on the east side of the base, facilitating the organization of independent external transportation and avoiding the impact on the teaching area.
▲总体布局分析图 ©泛泰设计
02. 公共空间的挖掘和利用

方案借用教学楼、报告厅、风雨操场等不同层高的功能用房的屋顶打造连续的上人屋面。学生可以很方便的到达各层活动平台,让课间活动不再受限于局促的内走廊空间,同时也增加了公共活动空间的层次。
The plan borrows the roofs of functional buildings with different heights, such as teaching buildings, lecture halls, and wind and rain playgrounds, to create a continuous accessible roof. Students can easily reach the activity platforms on each floor, making break time activities no longer limited by cramped inner corridor spaces, while also increasing the level of public activity spaces.
▲令人心动的场所营造 ©泛泰设计
03. 超长立面的化解

▲校园活动空间与教学楼关系 ©泛泰设计
建筑东西向沿街面长约185米,在教学楼标准化立面要求的前提下,如何化解超长形体的呆板,方案通过几个“洞口”的巧妙处理和立面双开间分组的手法削弱建筑超长界面带给人的视觉压迫感和单调性,每一个“洞口”都对应内部的公共空间,在平面上也进行了针对性的调整,做到平立面一体化设计。
The east-west side of the building is about 185 meters long along the street. Under the premise of standardized facade requirements for teaching buildings, how to resolve the rigidity of the ultra long form? The plan weakens the visual oppression and monotony brought by the ultra long interface of the building through the clever handling of several "openings" and the grouping of double openings on the facade. Each "opening" corresponds to the internal public space, and targeted adjustments have been made on the plane to achieve integrated design of the plane and facade
学校,作为孩子们成长的重要场所,其设计不仅关乎视觉美感,更承载着孩子们的欢乐成长。在这个充满创意和想象力的时代,让我们一起用设计的力量,为孩子们打造一个欢乐成长的校园环境吧!
School, as an important place for children's growth, its design not only concerns visual beauty, but also carries the joyful growth of children. In this era full of creativity and imagination, let's use the power of design together to create a joyful and growing campus environment for children!
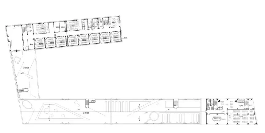
▲二层平面图
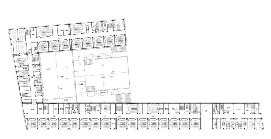
▲三层平面图
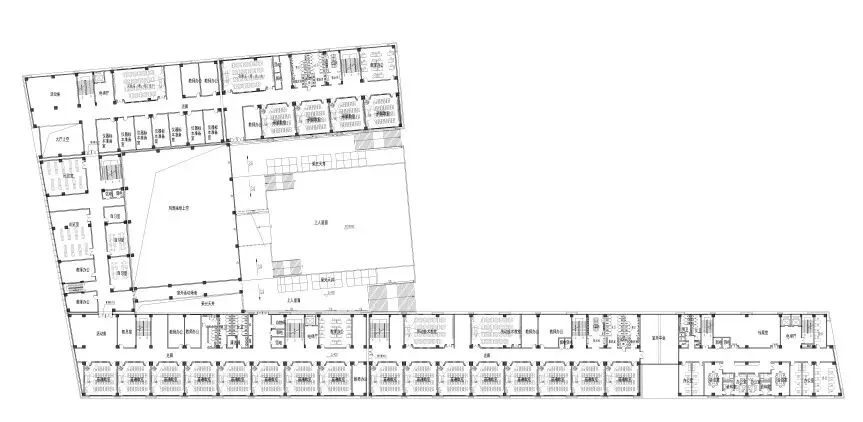
▲四层平面图
▲五层平面图
▲屋顶机房平面图
项目名称:内蒙古农业大学附属学校分校建设项目
项目地点:内蒙古呼和浩特市
建筑面积:45000㎡(含地下)
设计时间:2023年
设计单位:上海泛泰建筑工程设计有限公司
合作单位: 内蒙古中域航天工程规划设计有限公司
设计主创:韩登荣、边波
团队成员:王慧敏、王佳佳、何苏楠、王晓红、高贝贝、陈威銮、喻勇勇
团队成员:张金霞、李晨、陈小明、刘丹凤、张绍敏、张广
团队成员:张树强、姚杰、丁二维、卢佳、牟建广、樊国慧、郝建鑫、邢国磊
▒更多项目 ▒

泛泰作品|一个全新的第四代高端住宅体系——“万锦·宽阅” 项目
泛泰作品|上海佳昌实业企业总部项目

泛泰作品|蒙牛正缘牧场新能源充电站项目

泛泰作品|万锦皓月项目

泛泰作品|时空折叠—万锦合泰社区温室花园生活馆

泛泰作品 |高密度下垂直重构-呼和浩特万锦小学项目

泛泰作品 | 万锦·梧桐樾营销中心改造

泛泰作品 | 呼和浩特市第四中学项目
泛泰作品 | 北方温室花园之万锦篇
在腾格里下奔跑 |“我“在内蒙做学校

泛泰作品 | 万锦·梧桐樾(原中宇广场项目)

泛泰作品 | 大寰·天悦府营销中心

泛泰作品 | 万锦云锦项目

泛泰作品 | 哈达路小学

泛泰作品 | 万锦·揽月豪宅项目

泛泰作品 | 金融世家
泛泰作品 | 亿利澜庭样板展示空间

泛泰作品 | 养老建筑专题

泛泰作品 | 青岛现代海洋国际科技同创产业园

泛泰作品 | 上海青浦练塘镇派出所新建工程

泛泰作品 |社区共生:一场教育的生态化反 呼和浩特万锦小学项目

泛泰作品 | 安徽怀远县文化科技馆
泛泰作品 | 万锦·水云天